Ricerca avanzata
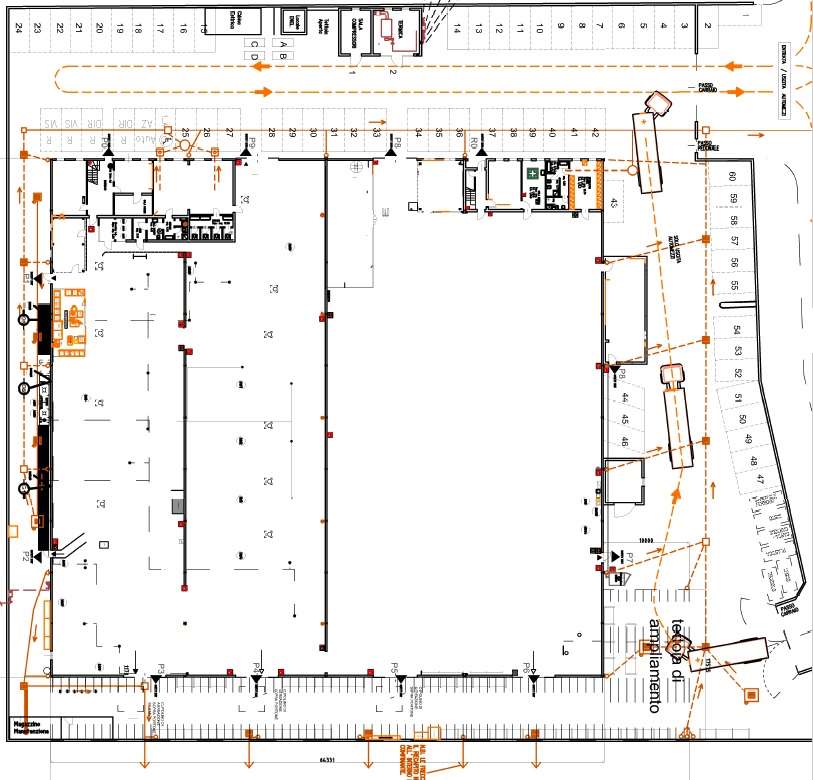
CAPANNONE INDIPENDENTE CON AREA PRIVATA
FABBRICATO DI TIPO INDUSTRIALE COMPOSTO DA CAPANNONE di circa 4000mq + Blocco uffici suddivisi su due piani per complessivi 500mq + Tettoia esterna ad espansione del capannone per altri 1000mq copertiInternamente al capannone troviamo diversi spogliatoi e servizi dedicati, area infermeria, CED con impianto di rete dati, impianti elettrici, impianto di climatizzazione uffici e diabatico per capannone, impianto di riscaldamentoPossibilità di riattivare un carroponte da 5 TON (attualmente bloccato)Diversi portoni di accesso alla produzioneArea di circa 7500mq pertinenziale al capannone (comprendente il sedime del fabbricato)

