Ricerca avanzata
VILLA CON PISCINA E POTENZIALE
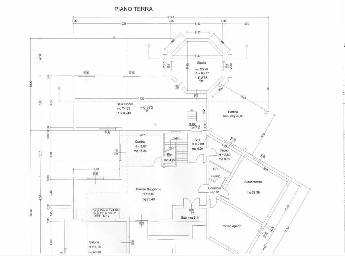
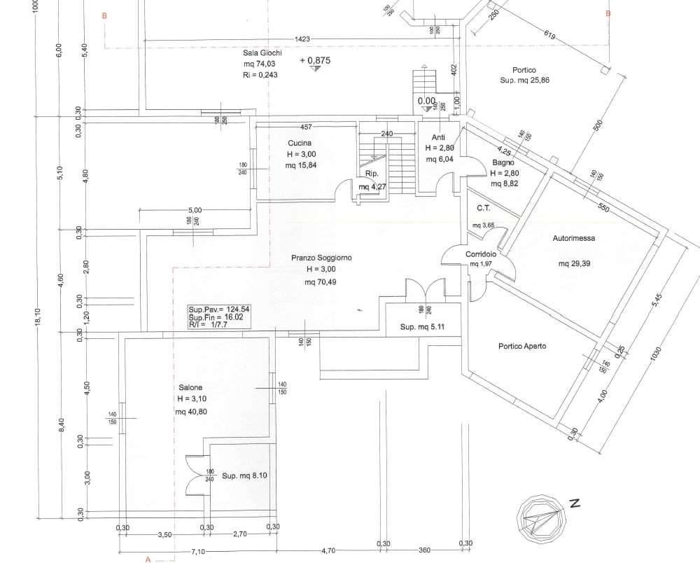
L'Eleganza e lo Spazio che Hai Sempre Desiderato: Villa Esclusiva con Parco Privato e PiscinaScopri il tuo nuovo rifugio di lusso in una delle zone residenziali più ambite. Questa magnifica Villa indipendente, edificata nei primi anni 2000, si erge su un lotto privato di circa 2.200 mq, garantendo la massima privacy pur essendo immersa in un contesto di pregio, circondata da sole altre ville.Gli Spazi Esterni: Il Tuo Resort PrivatoPiscina a sfioro (50 mq): Perfetta per l'intrattenimento estivo e il relax quotidiano.Parco Esclusivo: Oltre 2.200 mq di verde lussureggiante e curato, ideale per cene all'aperto, giochi dei bambini o semplicemente godersi la quiete.Massima Riservatezza: L'ampio giardino che circonda la proprietà assicura un'atmosfera di totale tranquillità e privacy.Gli Interni: Dimensioni Regali e Potenziale IllimitatoGli ambienti sono caratterizzati da dimensioni generose e introvabili, pensate per chi ama vivere senza compromessi:Piano Terra: Un doppio salone maestoso di oltre 120 mq – il cuore della casa, ideale per ricevimenti e vita familiare. Completano il piano una cucina abitabile, bagno e lavanderia.Piano Ammezzato (La Zona Svago): Uno spazio versatile e spettacolare di oltre 100 mq con un suggestivo caminetto, perfetto come sala hobby, cinema privato o palestra, affiancato da uno studio separato.Piano Primo (La Zona Notte): Tre grandi camere da letto, un bagno principale (con la facile possibilità di ricavare il secondo bagno) e un comodo terrazzino. Ampio ripostiglio.Piano Interrato (L'Oasi di Benessere): Dedica un momento a te stesso nella tua zona benessere privata, completa di vasca idromassaggio, sauna e bagno turco. C'è anche lo spazio per realizzare una piscina interna coperta!Dettagli Aggiuntivi e Potenziale di RinnovamentoParcheggio: Doppio garage e doppio posto auto coperto.Stato: La villa è in ottime condizioni strutturali. Offre l'opportunità unica di essere ristrutturata nelle finiture interne (bagni, pavimenti, rivestimenti) per adeguarla ai più moderni standard di lusso e design, creando così la casa dei tuoi sogni su misura.Efficienza Energetica: Suggeriamo l'installazione di un impianto fotovoltaico per massimizzare l'indipendenza energetica e ridurre drasticamente i costi.Una proprietà con spazi straordinari e un potenziale di personalizzazione senza pari. Non perdere l'opportunità di vivere in questa esclusiva oasi di pace.Contattaci subito per fissare una visita e scoprire di persona ogni dettaglio!




